KGC FACTORY
Status: On Hold
Location: Phnom Penh , Cambodia
Year: 2018
Client: KGC
Architects:, Atelier Cole, Elettra Melani
Scope of service: Preliminary concept
Status: On Hold
Location: Phnom Penh , Cambodia
Year: 2018
Client: KGC
Architects:, Atelier Cole, Elettra Melani
Scope of service: Preliminary concept
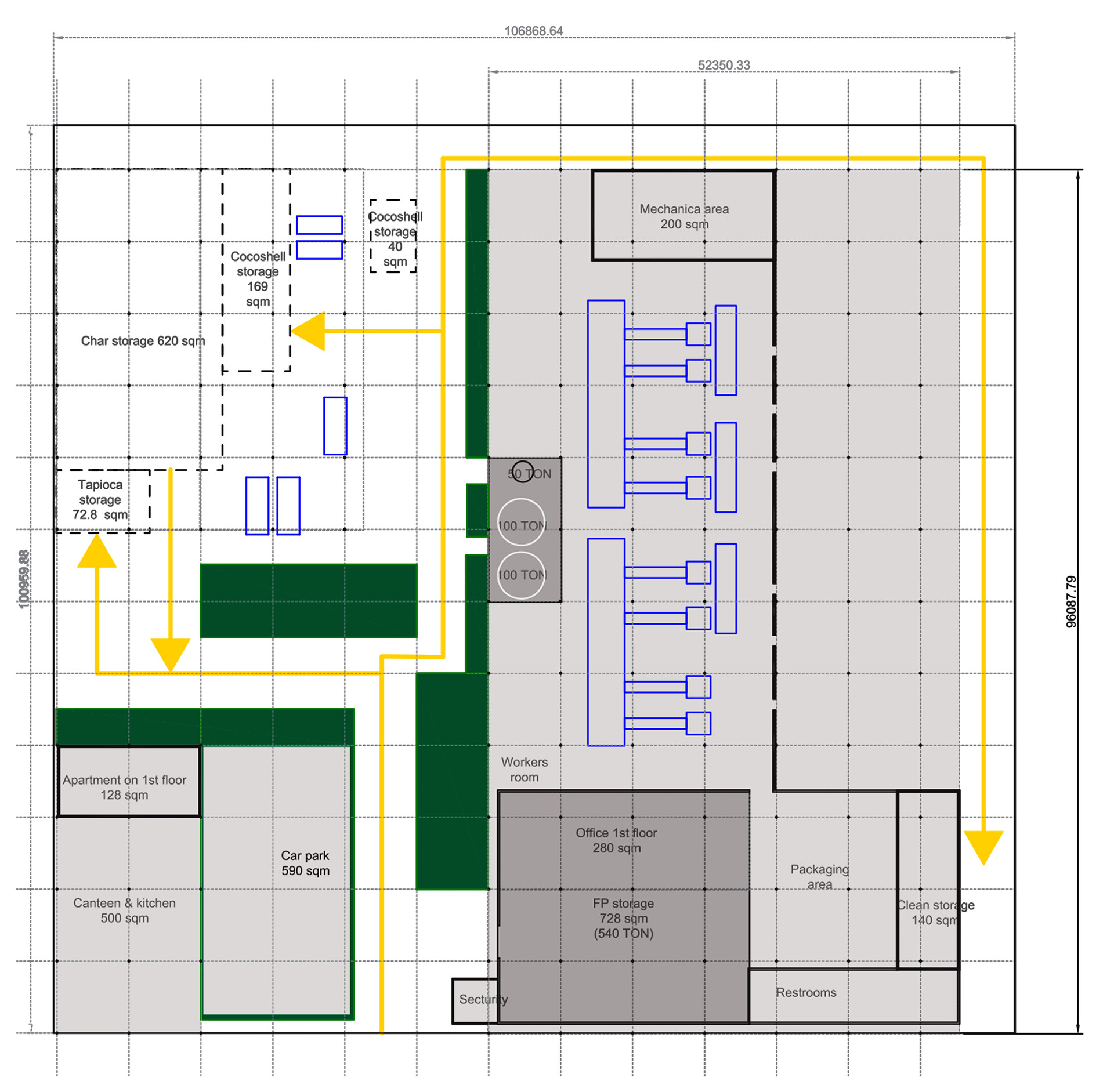
DIAGRAMMATIC LAYOUT OF THE NEW PRODUCTION SPACE
3D DIAGRAM OF THE BUILDING STRUCTURE
To help solve the problem of deforestation, KGC has developed a clean cooking fuel made of organic waste. therefore providing a sustainable alternative to reckless wood-charcoal consumption.
KGC is currently looking for funding to invest in a new production facility. I had the pleasure to work on the preliminary concept for this factory, hopefully the target will be hit soon and the project will go ahead.